MARVIN JESKE Immobilien
Wird geladen...

Müden (Mosel): Außergewöhnliches Entwicklungsobjekt mit vielfältigem Nutzungspotenzial, ideal für Kapitalanleger, Projektentwickler und Handwerker mit Anspruch

Mehrfamilienhaus zum Kauf in 56254 Müden (Mosel) / Objektnummer: 5221734

Beschreibung

+ Seltene Investitionschance mit ca. 800 m² Gesamtfläche und enormem Entwicklungspotenzial
+ Vielseitiges Nutzungskonzept mit Ferienvermietung, Festvermietung und separater Betreiberwohnung
+ Solide Grundlage für die Fertigstellung dank bereits erfolgter Teilsanierungen
+ Maximale Gestaltungsfreiheit für individuelle Ausbau- und Renditestrategien
+ Attraktive, hochwasserfreie Mosellage mit Charme, Ruhe und touristischer Nachfrage

In attraktiver Lage von Müden an der Mosel präsentiert sich diese außergewöhnlich großzügige Immobilie mit einem enormen Entwicklungspotenzial. Mit einer Wohnfläche von ca. 500 m² sowie einer zusätzlichen Nutzfläche von ca. 300 m² steht Ihnen hier eine Gesamtfläche von rund 800 m² zur Verfügung, eine seltene Gelegenheit für alle, die Raum für Ideen, Konzepte und rentable Perspektiven suchen.

Das Anwesen eröffnet Ihnen vielfältige Nutzungsmöglichkeiten. Aktuell ist die Realisierung von insgesamt sieben Wohneinheiten vorgesehen, darunter fünf Ferienwohnungen sowie zwei fest vermietbare Wohnungen. Ergänzt wird das Raumangebot durch eine separate Privatwohnung mit eigenem Eingang über zwei Etagen und einer Wohnfläche von ca. 96,61 m². Damit eignet sich die Immobilie hervorragend für ein Konzept aus Eigennutzung, Ferienvermietung und klassischer Wohnraumvermietung.

Bereits fertiggestellt sind die Privatwohnung sowie eine der geplanten Mietwohnungen, sodass eine erste Nutzung bereits möglich ist. Die übrigen Flächen bieten Ihnen umfangreichen Spielraum zur individuellen Fertigstellung und Ausgestaltung – ideal für Käufer, die ihre eigenen Vorstellungen verwirklichen und gleichzeitig ein nachhaltiges Renditeobjekt schaffen möchten.

Besonders für Kapitalanleger bietet diese Immobilie ein außergewöhnlich attraktives Ertragspotenzial: Allein mit den geplanten fünf Ferienwohnungen lassen sich bei einer konservativen Kalkulation von 80 € bis 120 € pro Nacht je Einheit mögliche Bruttojahresumsätze von ca. 58.400 € bis 153.300 € erzielen. Hinzu kommen zwei fest vermietbare Einheiten mit insgesamt ca. 140 m² Wohnfläche und einem zusätzlichen Mietpotenzial von rund 16.800 € jährlich bei einer Ansatzmiete von ca. 10 €/m². Die separate Betreiberwohnung mit ca. 96,61 m² kann wahlweise selbst genutzt, fest vermietet oder ebenfalls als Ferienwohnung betrieben werden. So eröffnet sich ein vielseitiges Investment mit überzeugender Flexibilität und nachhaltiger Ertragsperspektive.

Die Raumaufteilung im Überblick
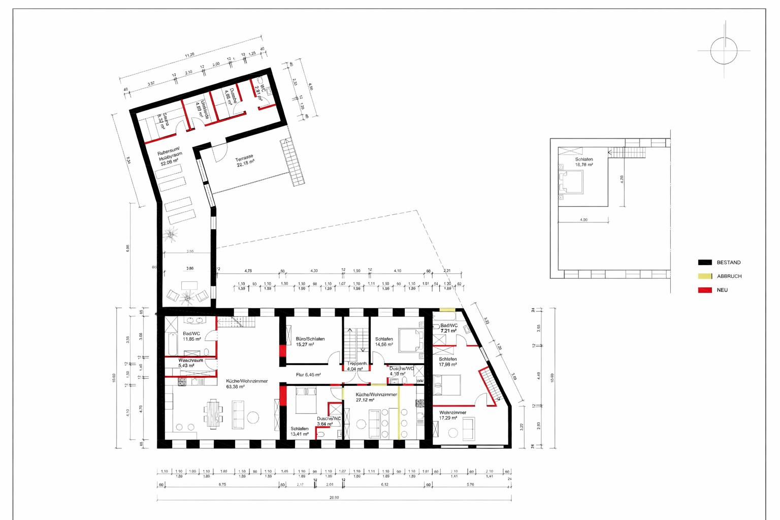
Die Privatwohnung mit separatem Eingang verfügt über ca. 96,61 m² Wohnfläche und erstreckt sich über zwei Ebenen. Im Erdgeschoss befinden sich ein großzügiger offener Wohn- und Essbereich, die Küche, ein Gäste-WC sowie ein Schlafzimmer. Im Obergeschoss stehen ein Hauptbad mit Dusche und Badewanne sowie zwei weitere Schlafzimmer zur Verfügung. Dieser Bereich eignet sich ideal für die Eigennutzung oder als Betreiberwohnung.

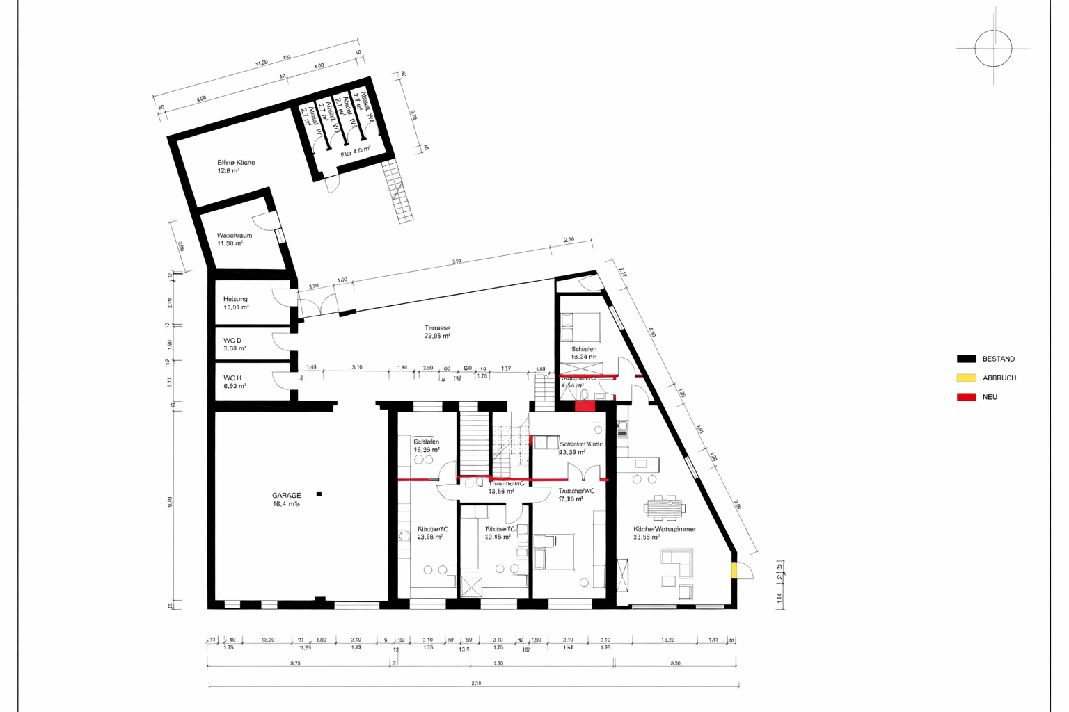
Im Erdgeschoss des Hauptgebäudes sind derzeit zwei Ferienwohnungen geplant.
Die Ferienwohnung 1 verfügt über ca. 39 m², die Ferienwohnung 2 über ca. 37 m². Beide Einheiten sind jeweils mit Schlafzimmer, Bad sowie einem offenen Wohn- und Essbereich vorgesehen. Ergänzt wird diese Ebene durch eine großzügige Garage mit ca. 82 m² sowie weitere Nutzflächen, darunter ein Aufenthaltsraum, Heizungsraum, WC-Bereich und Waschraum. Die gesamte Nutzfläche im Erdgeschoss beträgt ca. 106 m².

Im Obergeschoss sind die fest vermietbaren Wohneinheiten vorgesehen.
Eine Wohnung mit ca. 95 m² Wohnfläche bietet einen offenen Wohn- und Essbereich, Badezimmer, Waschraum sowie ein Büro bzw. Schlafzimmer.
Die zweite Mietwohnung mit ca. 60 m² verfügt über eine Küche mit offenem Wohnbereich, Dusche/WC sowie ein Schlafzimmer.
Darüber hinaus befinden sich auf dieser Etage weitere Flächen mit zusätzlichem Entwicklungspotenzial, darunter eine Terrasse, ein Hobbyraum, Nutzflächen, Umkleiden, ein geplanter Saunabereich sowie ein weiteres WC.

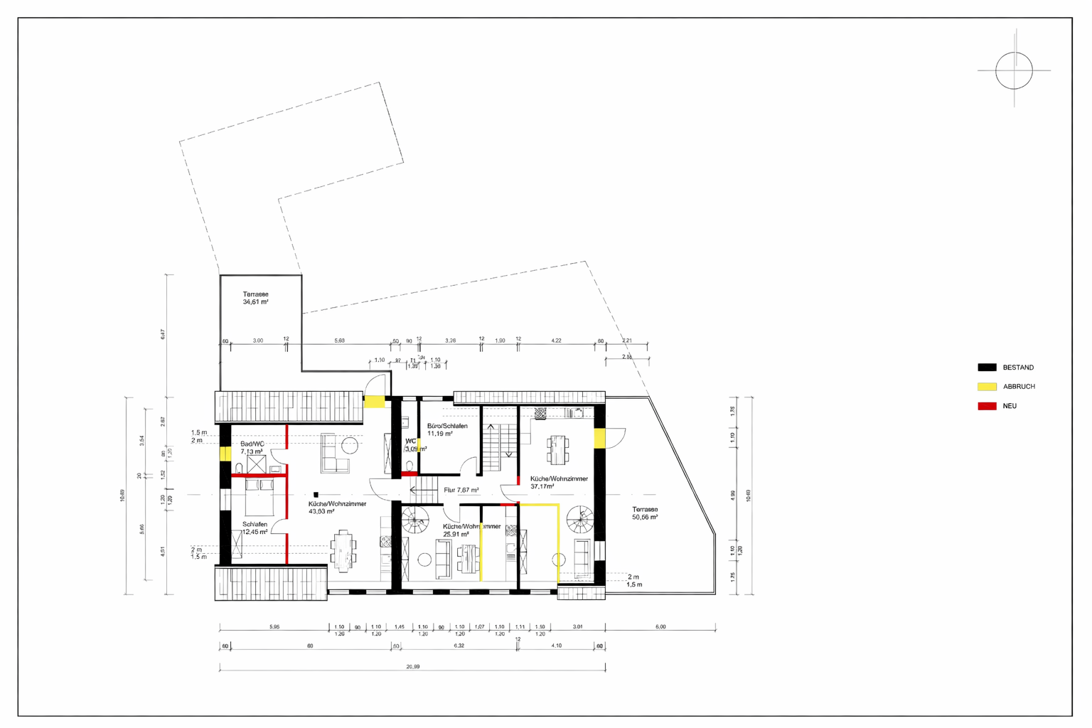
Im Dachgeschoss sind insgesamt drei weitere Ferienwohnungen vorgesehen.
Die Ferienwohnung 3 mit ca. 75 m² ist mit offenem Wohn- und Essbereich, Schlafzimmer sowie Bad/WC geplant.
Die Ferienwohnungen 4 und 5 sind als kompaktere Einheiten mit Wohn-Essbereich, Schlafzimmer und Badezimmer vorgesehen und verfügen über ca. 34 m² bzw. 48 m².
Ergänzend befinden sich auf dieser Ebene ein Waschraum sowie zusätzliche Dachbodenfläche.

Diese Immobilie ist weit mehr als ein klassisches Wohnhaus, sie ist ein Projekt mit Perspektive. Ob als Renditeobjekt mit mehreren Einheiten, als Ferienimmobilie mit Betreiberwohnung, als Mehrgenerationenhaus oder als Kombination aus Wohnen und Vermieten: Hier eröffnen sich Ihnen zahlreiche Möglichkeiten.

Besonders für Kapitalanleger, Projektentwickler und handwerklich begabte Käufer bietet dieses Objekt eine hervorragende Grundlage, um eigene Ideen in eine wertstabile und ertragreiche Immobilie zu verwandeln. Die bereits teilweise fertiggestellten Bereiche schaffen dabei eine gute Ausgangsbasis, während die noch ausbaufähigen Flächen erheblichen Gestaltungsfreiraum und Wertschöpfungspotenzial bieten.
Überzeugen Sie sich selbst, bei einer Besichtigung, von der Wertigkeit dieser besonderen Immobilie. Alle Angaben beruhen auf Informationen der Verkäufer und wurden mit größter Sorgfalt recherchiert und verarbeitet. MARVIN JESKE Immobilien übernimmt keine Gewähr und Haftung für die Richtigkeit dieser.

Ausstattung

Zum Verkauf steht eine teilsanierte Immobilie mit erheblichem Entwicklungspotenzial, die sich insbesondere für Kapitalanleger, Projektentwickler und handwerklich versierte Käufer eignet. Das ursprünglich ca. 1949 errichtete Gebäude verfügt über eine Gesamtfläche von rund 800 m², aufgeteilt in ca. 500 m² Wohnfläche und ca. 300 m² Nutzfläche. Die Grundstücksgröße beträgt ca. 543 m².

Die Immobilie wurde in massiver Bauweise errichtet und befindet sich in einem insgesamt teilweise sanierten, überwiegend rohbauähnlichen Zustand, wodurch sich vielfältige Möglichkeiten für die individuelle Fertigstellung und Nutzung ergeben. Besonders hervorzuheben ist, dass in der Betreiber- bzw. Hauptwohnung die Elektrik sowie die Wasserleitungen bereits erneuert wurden. Auch in einer weiteren Einheit wurden bereits erste Maßnahmen vorgenommen.

Ein großer Vorteil besteht darin, dass derzeit kein fest installiertes Heizsystem vorhanden ist. Dies eröffnet dem Erwerber die Möglichkeit, ein Heizkonzept ganz nach eigenen Vorstellungen und energetischen Anforderungen zu realisieren. Die Fenster wurden im Jahr 2025 erneuert und sind bereits mit dreifacher Verglasung ausgestattet.

Das Dach ist mit Kunstschiefer eingedeckt und sollte im Rahmen der weiteren Modernisierung perspektivisch überprüft beziehungsweise erneuert werden. Glasfaser ist bereits beantragt, was eine zukunftsorientierte technische Anbindung zusätzlich unterstützt.

Eine Wohneinheit ist derzeit bereits vermietet, die Betreiberwohnung wird aktuell noch teilweise selbst genutzt. Dadurch ist die Übergabe flexibel gestaltbar. Positiv hervorzuheben ist zudem die hochwasserfreie Lage der Immobilie.

Lage und Verkehrsanbindung

Die Immobilie befindet sich in Müden an der Mosel, einem charmanten Weinort im Landkreis Cochem-Zell. Der Ort liegt in reizvoller Lage an der unteren Mosel und verbindet naturnahes Wohnen mit dem besonderen Flair einer gewachsenen Weinbaugemeinde. Die Umgebung ist geprägt von Weinbergen, dem historischen Ortsbild und der Nähe zu bekannten Ausflugszielen wie der Burg Eltz. Darüber hinaus bietet die Region einen hohen Freizeit- und Erholungswert mit zahlreichen Wander- und Radwegen entlang der Mosel.

Auch infrastrukturell bietet Müden attraktive Voraussetzungen für den Alltag. Der Ort verfügt über eine gute regionale Anbindung und ist über die Moselstrecke sowie das umliegende Straßennetz gut erreichbar. Die Wohnlage eignet sich damit ideal für alle, die ruhiges Wohnen in landschaftlich schöner Umgebung mit einer guten Erreichbarkeit der umliegenden Zentren verbinden möchten.

Gleichzeitig ist eine gute Alltagstauglichkeit gewährleistet: Die Einrichtungen des täglichen Bedarfs befinden sich überwiegend in den nahegelegenen Nachbarorten, insbesondere in Treis-Karden, und sind in kurzer Distanz erreichbar. Somit verbindet der Standort die Vorzüge eines charmanten Moselortes mit einer komfortablen Nahversorgung und einer guten regionalen Anbindung.

Im Ort selbst befinden sich eine Grundschule sowie eine Kindertagesstätte, was den Standort insbesondere für Familien interessant macht.

Insgesamt bietet diese Lage eine gelungene Kombination aus landschaftlicher Schönheit, ruhigem Wohnen, hohem Freizeitwert und solider Infrastruktur – eine attraktive Adresse für alle, die Wohnqualität in besonderem Ambiente schätzen.

Sonstige Angaben

Gesetzliche Pflichtangaben zur EnEV 2014:
Ein Energieausweis wird aufgrund der Tatsache, dass kein zentrales Heizsystem installiert ist, nicht benötig.

Der Schutz Ihrer personenbezogener Daten ist für uns ein wichtiges Anliegen. Wir nehmen den Datenschutz sehr ernst. Daher betrachten wir es als unsere vorrangige Aufgabe, die Vertraulichkeit der von Ihnen bereitgestellten personenbezogenen Daten zu wahren und alle Daten vor unbefugten Zugriffen zu schützen. Deshalb wenden wir äußerste Sorgfalt an, um einen maximalen Schutz Ihrer personenbezogener Angaben zu gewährleisten. Für die Bearbeitung Ihrer Anfrage müssen Daten gespeichert werden, welche jedoch lediglich dem sachdienlichen Gebrauch unserer Dienstleistung zu Grunde liegen. Auf Wunsch werden diese selbstverständlich nach vollständiger Bearbeitung Ihres Anliegens gelöscht.

Eigenschaften

Objektnummer:
5221734
Objekttyp:
Mehrfamilienhaus
Balkone:
1
Wohneinheiten:
7
Gesamtfläche:
800 m²
Grundstücksfläche:
503 m²
Vermietbare Fläche:
500 m²
Baujahr:
1949
Letzte Sanierung:
2025
Zustand:
Teilsaniert
Alter:
Altbau
Verfügbarkeit:
Verfügbar

Ausstattung

Kategorie:
Standard
Küche:
mit EBK

Preisdetails

Kaufpreis:
395.000,00 €
Vermittlungsprovision:
ja
Provision:
3,57% inkl. MwSt.

Energieeffizienz

Energiepass

Art:
Bedarf
EP-Jahrgang:
nicht nötigt
EP-Gebäudeart:
Wohn

Ansprechpartner

MARVIN JESKE Immobilien
© 2026 MARVIN JESKE Immobilien, Inhaber Marvin Jeske · Alle Rechte vorbehalten
Filiale: Auswählen Sprache: Deutsch
Es ist ein Fehler aufgetreten. Bitte laden Sie die Seite neu! Neu laden 🗙